PLAN FAMILIAR

Blog Image

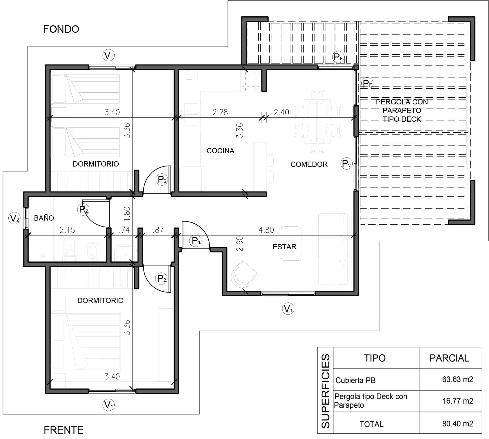
Con distinguidas formas que acompañan al ingreso de tu futura casa, te presentamos el modelo ideal para una pequeña familia. Al acceder recibirás a tus invitados en un living estar semi sectorizado, que conecta directamente con el ambiente principal de la vivienda; la cocina, espacio que percibe toda la transparencia e iluminación natural a través de sus cristales.

La funcionalidad de éste moderno diseño conduce a la zona de descanso, compuesto por 2 dormitorios y un baño social en el centro. Total metros cubiertos 63.63 m²; semi cubiertos cuenta 16.77 m²; total a construir 80.4 m²

Blog Image Blog Image Blog Image Blog Image